Objekt-Nr.: WM624

Zentrumsnahe kleine 2-Raum-Wohnung mit Balkon im Dachgeschoss

Adress Icon Bahnhofstraße 63
04720 Döbeln

452,20 €
Warmmiete
2,0
Zi.
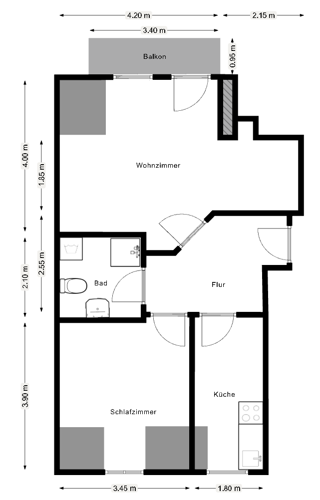
51,30m2
Wohnfläche

Typ: DG-Wohnung
Wohnfläche ca.: 51,30m2 Zimmer: 2,0
Grundstücksfläche ca.: keine Angaben

Kosten

Kaltmiete: 247,00 € Nebenkosten: 102,60 €
Heizkosten: 102,60 €
Warmmiete: 452,20 € Kaution: 494,00 €

Bausubstanz & Energieausweis

Objektzustand: Saniert
Baujahr: 1899 Energieausweistyp: Keine Angabe
Wesentliche Energieträger: Gas Endenergie­verbrauch: 86,50 kWh/(m2*a)
Energieausweis: Energieausweis liegt für das Gebäude vor

Ausstattung

  • Zentralheizung
  • Standard
  • Gas
  • Fliesen
  • Laminat
  • Dusche
  • Keller
  • Balkon

Objektbeschreibung

Eine gemütliche 2-Raum-Wohnung im Dachgeschoss eines modernisierten Mehrfamilienhauses in zentrumsnaher Lage. Es gibt keine Durchgangszimmer; Wohnzimmer, Schlafzimmer, Küche und Bad sind vom Flur aus begehbar. Der Balkon ist vom Wohnzimmer aus erreichbar und bietet einen tollen Blick über Döbeln. Das hell geflieste Bad wurde mit Dusche, Handtuchheizkörper und Waschmaschinenanschluss ausgestattet. Alle anderen Räume wurden mit Laminat versehen. Ein zur Wohnung gehöriger Keller bietet zusätzliche Abstellmöglichkeiten.

Das Gebäude verfügt über eine digitale SAT-Anlage.

Lage

Die Wohnung befindet sich in einem komplett sanierten Mehrfamilienhaus unweit des Döbelner Stadtzentrums. Die Einkaufsmärkte Lidl und Edeka sind fußläufig in 5 - 10 Minuten erreichbar, ebenso das Zentrum mit zahlreichen Geschäften, Gaststätten, Ärzten, Banken und weiteren infrastrukturellen Gegebenheiten. Die nahe liegende Bushaltestelle wird vom Stadtverkehr viertelstündlich angefahren und ermöglicht Anbindungen zum Hauptbahnhof und in umliegende Ortschaften.

Erholung und Ruhe finden Sie im nahe liegenden Bürgergarten mit Restaurant sowie in der Parkanlage Wettinplatz, die zum Bummel und Entspannung einladen.

Karte

Bahnhofstraße 63, 04720 Döbeln

Objektanfrage

Sie haben Interesse an diesem Wohnungsobjekt? Wir freuen uns auf Ihre Anfrage!